Drawings

System drawings

VELFAC Ribo wood/aluminium windows, casement doors and panels
Element drawings
Grooves for VELFAC Ribo
Grooves, rebates and packers
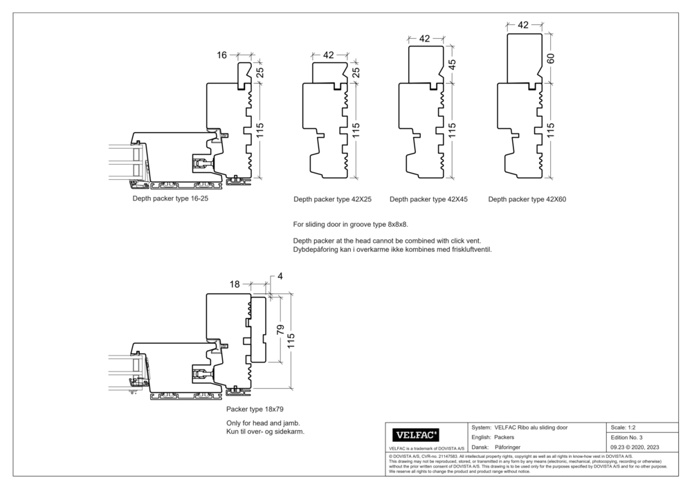
Packers for VELFAC Ribo wood/aluminium sliding door
Packers for wood/aluminium sliding doors
External corner solutions for VELFAC Ribo wood/aluminium
Corner solutions
Groove and frame extention packer for Louvre with internal door
Frames and transoms for VELFAC louvre panel with internal door

Coupling details

Coupling details, VELFAC Ribo with VELFAC Ribo, PDF
VELFAC Ribo - VELFAC Ribo
Coupling details, VELFAC Ribo - VELFAC aluminium doors
VELFAC Ribo windows - VELFAC Aluminium doors
VELFAC Ribo - VELFAC In coupling
VELFAC Ribo - VELFAC In inward opening windows
Couplings with VELFAC Ribo sliding door
VELFAC Ribo sliding door couplings
VELFAC 200 DGU - VELFAC Ribo doors
VELFAC 200 DGU - VELFAC Ribo doors
VELFAC 200 ENERGY - VELFAC Ribo entrance door
VELFAC 200 ENERGY - VELFAC Ribo doors

VELFAC Ribo windows, Commercial structural interface drawings

The structural interface drawings feature VELFAC Ribo wood/aluminium, but VELFAC Ribo wood is installed according to the same methods.
Brick - Block Masonry - Head
Brick as outer skin of structure
Insulated Render - Block Masonry - Head
Insulated Render as outer skin of structure
Rendered Block - Block Masonry - Head
Rendered Block as outer skin of structure
Timber Cladding - Block Masonry - Head
Timber as outer skin of structure

VELFAC Ribo windows, Structural Interface drawings, Housebuilder projects

The structural interface drawings feature VELFAC Ribo wood/aluminium, but VELFAC Ribo wood is installed according to the same methods.
Brick - Block Masonry - Head
Brick as outer skin of structure
Insulated Render - Block Masonry - Head
Insulated Render as outer skin of structure
Rendered Block - Block Masonry - Head
Rendered Block as outer skin of structure
Timber Cladding - Block Masonry - Head
Timber as outer skin of structure