Product database
Windows & Patio doors
  • VELFAC 200 ENERGY
  • VELFAC Ribo wood/aluminium
  • VELFAC Ribo wood
  • VELFAC Classic wood/alu
  • VELFAC Classic wood
  • VELFAC In
  • VELFAC Fire element
Entrance doors
  • VELFAC Aluminium doors
  • VELFAC Ribo wood/alu doors
  • VELFAC Ribo wood doors
  • VELFAC Classic wood/alu doors
  • VELFAC Classic wood doors
Download Centre
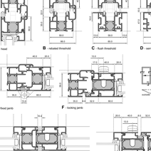
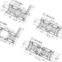
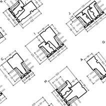
  • System drawings
  • BIM objects
  • Structural Drawings for Commercial projects
  • Structural Drawings for Housebuilder projects
  • Installation and Adjustment
  • Operation and Maintenance
  • User Guides
  • DoP Documents
  • Product specific EPDs
  • Specification Guides
Resource Centre
Login (Employees only)
Product database
Go to VELFAC.co.uk
  • VELFAC Product database
  • Download Centre
  • System drawings
  • Download Centre

System drawings

image
VELFAC 200 ENERGY windows and casement doors
image
VELFAC Ribo wood/alu windows and doors
image
VELFAC Ribo wood windows and doors
image
VELFAC Classic wood/alu windows and doors
image
VELFAC Classic wood windows and doors
image
VELFAC In windows and Juliette doors
image
VELFAC Aluminium doors
image
VELFAC Fire element
image
VELFAC Bi-folding patio doors