Product database
Windows & Patio doors
VELFAC 200 ENERGY
VELFAC Ribo wood/aluminium
VELFAC Ribo wood
VELFAC Classic wood/alu
VELFAC Classic wood
VELFAC In
VELFAC Fire element
Entrance doors
VELFAC Aluminium doors
VELFAC Ribo wood/alu doors
VELFAC Ribo wood doors
VELFAC Classic wood/alu doors
VELFAC Classic wood doors
Download Centre
System drawings
BIM objects
Structural Drawings for Commercial projects
Structural Drawings for Housebuilder projects
Installation and Adjustment
Operation and Maintenance
User Guides
DoP Documents
Product specific EPDs
Specification Guides
Resource Centre
Login (Employees only)
Product database
Go to VELFAC.co.uk
VELFAC Product database
Windows & Patio doors
VELFAC 200 ENERGY
Drawings
Windows & Patio doors
VELFAC 200 ENERGY
System information
Opening functions
Fittings & Accessories
Glazing
Panels
Drawings
Performance
Guides
Drawings
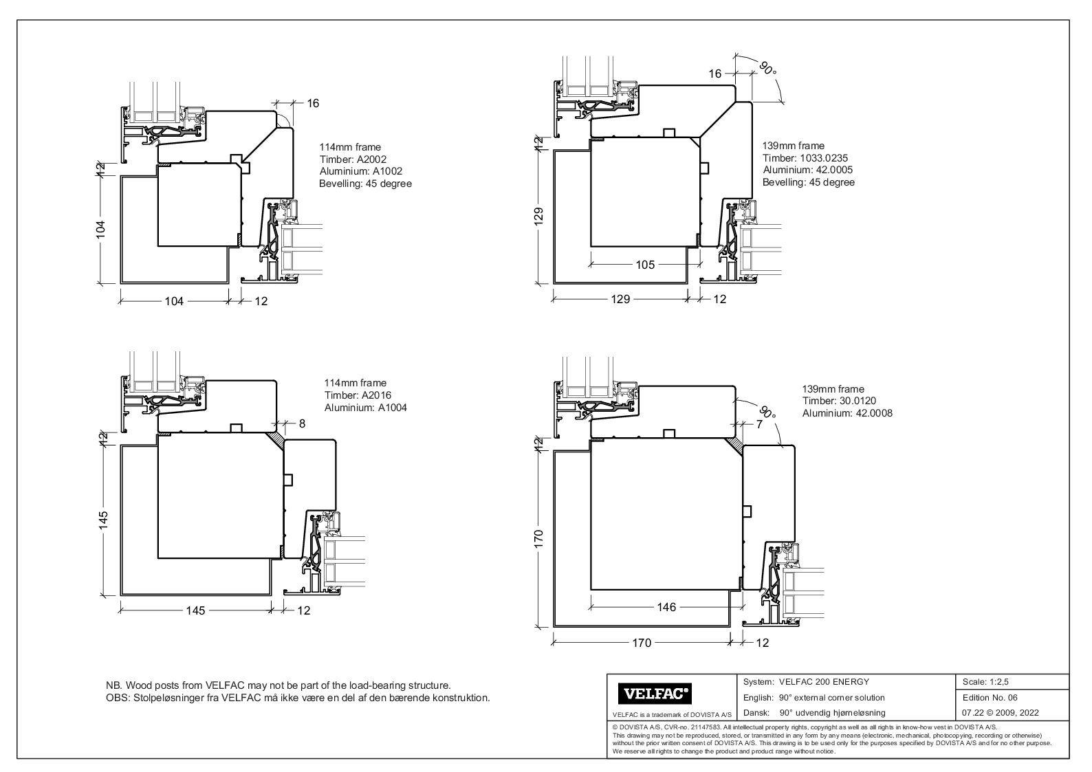
System drawings
Here you will find VELFAC 200 ENERGY system drawings.
The drawings can be downloaded as DWG or PDF files and are available free of charge when used in specifying VELFAC windows.
Windows, casement and sliding casement doors
Grooves, rebates and packers
Corner solutions
Coupling details
VELFAC 200 sectional drawings can be downloaded as DWG or PDF files.
VELFAC system details are available free of charge when used in specifying VELFAC windows.
VELFAC 200 ENERGY - VELFAC 200 ENERGY
VELFAC 200 ENERGY - VELFAC In (inward opening system)
VELFAC 200 ENERGY - VELFAC Ribo doors
VELFAC 200 ENERGY - VELFAC Aluminium doors
VELFAC 200 ENERGY, Commercial structural interface drawings
Below you will find structural interface drawings for Commercial projects.
Please follow the links below to the drawings as DWG and PDF.
The drawings are structured after outer skin.
Brick as outer skin of structure
Insulated Render as outer skin of structure
Rendered Block as outer skin of structure
Timber as outer skin of structure
Threshold Details
Threshold details, sliding casement door with 25mm threshold
Coping Interface details
VELFAC 200 ENERGY, Housebuilders structural drawings
Below you will find structural interface drawings for Housebuilding projects.
Please follow the links below to the drawings as DWG and PDF.
The drawings are structured after outer skin.
Brick as outer skin of structure
Insulated Render as outer skin of structure
Rendered Block as outer skin of structure
Timber as outer skin of structure
Green oak frame
Threshold Details
Threshold details, sliding casement door with 25mm threshold