Drawings

System drawings

VELFAC Ribo wood glazed entrance doors and patio doors
Glazed and flush entrance doors
Grooves for VELFAC Ribo
Grooves, rebates and packers

Coupling details

Coupling details, VELFAC Ribo with VELFAC Ribo, PDF
VELFAC Ribo - VELFAC Ribo
Coupling details, VELFAC Ribo - VELFAC aluminium doors
VELFAC Ribo windows - VELFAC Aluminium doors
VELFAC Ribo - VELFAC In coupling
VELFAC Ribo - VELFAC In inward opening windows
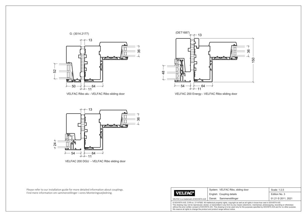
Couplings with VELFAC Ribo sliding door
VELFAC Ribo sliding door couplings
VELFAC 200 DGU - VELFAC Ribo doors
VELFAC 200 DGU - VELFAC Ribo doors
VELFAC 200 ENERGY - VELFAC Ribo entrance door
VELFAC 200 ENERGY - VELFAC Ribo doors

Outward opening VELFAC Ribo wood/aluminium doors (Commercial projects)

Brick - Block Masonry - Head
Brick as outer skin of structure
Insulated Render - Block masonry - Head
Insulated Render as outer skin of structure
Rendered Block - Block Masonry - Head
Rendered Block as outer skin of structure
Timber - Block Masonry - Head
Timber as outer skin of structure
Threshold Detail (RIBO.D1.01.A.C.001)
Threshold Details
Typical Coping Interface detail (V200.W1.COP.001)
Coping Interface details

Inward opening VELFAC Ribo wood/aluminium doors (Commercial projects)

Brick - Timber Frame - Head
Brick as outer skin of structure
Insulated Render - Block masonry - Head
Insulated Render as outer skin of structure
Rendered Block - Block Masonry - Head
Rendered Block as outer skin of structure
Timber - Block Masonry - Head
Timber as outer skin of structure
Threshold Detail (RIBO.D2.01.A.C.001)
Threshold Details
Typical Coping Interface detail (V200.W1.COP.001)
Coping Interface details

Outward opening VELFAC Ribo doors (Housebuilder projects)

The structural interface drawings feature VELFAC Ribo wood/aluminium.
VELFAC Ribo wood is installed according to the same methods.
Brick - Block Masonry - Head
Brick as outer skin of structure
Insulated Render - Block masonry - Head
Insulated Render as outer skin of structure
Rendered Block - Block Masonry - Head
Rendered Block as outer skin of structure
Timber - Block Masonry - Head
Timber as outer skin of structure
Threshold Detail (RIBO.D1.01.A.C.001)
Threshold Details

Inward opening VELFAC Ribo doors (Housebuilder projects)

The structural interface drawings feature VELFAC Ribo wood/aluminium.
VELFAC Ribo wood is installed according to the same methods.
Brick - Timber Frame - Head
Brick as outer skin of structure
Insulated Render - Block masonry - Head
Insulated Render as outer skin of structure
Rendered Block - Block Masonry - Head
Rendered Block as outer skin of structure
Timber - Block Masonry - Head
Timber as outer skin of structure
Threshold Detail (RIBO.D2.01.A.C.001)
Threshold Details